Фасадная система РОНСОН-200 под Алюминиевые композитные панели

  • Описание системы
  • Документация к системе
  • Фотографии + чертежи + узлы
  • Комплектующие
Компания «Алфас» предлагает решение для крепления облицовки кассетами из алюмокомпозита на системе «РОНСОН-200».

Возможна система крепления как по всей поверхности стены, так и исключительно в межэтажные перекрытия.

Облицовка зданий кассетами из алюмокомпозита получила широкое применение на многих зданиях производственного назначения, торговых центрах и даже на жилых домах, благодаря своей универсальности и технократичности.

А так же ряду других свойств:

  • Высокой жесткости
  • Небольшому весу
  • Высокой коррозионной стойкости
  • Большому разнообразию цвета
  • Большому сроку безремонтной эксплуатации
  • Возможности изготовления кассет больших размеров
  • Удобству изготовления угловых элементов

Система НВФ «РОНСОН-200» обладает рядом преимуществ:

  • Высокая скорость монтажа
  • Надежное крепление
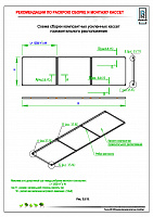
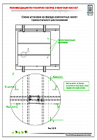
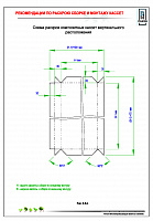
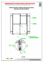
  • Возможность обеспечить швы шириной от 10 до 20 мм
  • Возможность расположения кассеты как в вертикальном, так и в горизонтальном направлении
  • Выполнен ряд объектов с размером кассет до 3 метров по горизонтали

f7c92c8352ad8ab82e6f4fe6a7a5a972
f7c92c8352ad8ab82e6f4fe6a7a5a972
96a265634c9e8045b95095f44f79f9cc
96a265634c9e8045b95095f44f79f9cc
d06efdaa7e608d5655fa85105a6f9a91
d06efdaa7e608d5655fa85105a6f9a91
fe4567f22e65d40cae10bd62b802a042
fe4567f22e65d40cae10bd62b802a042
7e230fa1382c573d859e391bb4d458a6
7e230fa1382c573d859e391bb4d458a6
961b37deb16c5a6640c6878cb5478088
961b37deb16c5a6640c6878cb5478088
ce4ab2699a733ecccf610209bc1ba0d2
ce4ab2699a733ecccf610209bc1ba0d2
1fe9e2db360e5327ebce17ea5e096217
1fe9e2db360e5327ebce17ea5e096217
f341675eef2ccdf5b0502cbd59078a4b
f341675eef2ccdf5b0502cbd59078a4b
f0eb731b674d73465c17fdfa00f9c04f
f0eb731b674d73465c17fdfa00f9c04f
0bf28cf0c032366359ef5111b0a0b418
0bf28cf0c032366359ef5111b0a0b418
3636e65a3947f9779ea70245b8388723
3636e65a3947f9779ea70245b8388723
464f4ee5f007811a558187c4d3dfad9b
464f4ee5f007811a558187c4d3dfad9b
8bfab7f2ff8357921fafb299f0836d3f
8bfab7f2ff8357921fafb299f0836d3f
b31e49f6dc8b8a6a6686d4f52b209d87
b31e49f6dc8b8a6a6686d4f52b209d87
601c2064a0e9fdbeb5f7a4320bf85316
601c2064a0e9fdbeb5f7a4320bf85316
934324a473cc4de53c14fd646a4f3a9e
934324a473cc4de53c14fd646a4f3a9e
f9586a826046688cf737352647b528be
f9586a826046688cf737352647b528be
d6aec7536dcd55b6a874f0410ada2970
d6aec7536dcd55b6a874f0410ada2970
eeb3077640243303b3f83860815c1ad6
eeb3077640243303b3f83860815c1ad6
d4104a557c37613363f7697c2b8d8e46
d4104a557c37613363f7697c2b8d8e46
748403ca9d6d470ada38c687237d963d
748403ca9d6d470ada38c687237d963d
feb5f2f9fe856cfe29299a219019b7fd
feb5f2f9fe856cfe29299a219019b7fd
f29dbca6a989217aaec55bdf968e742a
f29dbca6a989217aaec55bdf968e742a
ac3201c79da85f8faafa9c17903be299
ac3201c79da85f8faafa9c17903be299
7e238cfa42f4dfe87a119652d2bb8fc3
7e238cfa42f4dfe87a119652d2bb8fc3
8cbceae61ab036e57119d3224a067cdc
8cbceae61ab036e57119d3224a067cdc
0ef9842fa6e74a8115ba102cd33c282c
0ef9842fa6e74a8115ba102cd33c282c
a5156208e3ac8605455bbfef1ce1fec7
a5156208e3ac8605455bbfef1ce1fec7
Для вас предусмотрена скидка от базовых цен!
Отправить заявку

Другие фасадные системы под
Алюминиевые композитные панели

Заказать расчёт сметы. БЕСПЛАТНО!