Фасадная система Альфа-металлокассеты под Металлокассеты

  • Описание системы
  • Документация к системе
  • Фотографии + чертежи + узлы
  • Комплектующие

Конструкция навесной фасадной системы с воздушным зазором (далее - НФС) с облицовкой металлокассетами, профилированным листом, металлосайдингом "АЛЬФА-Металлокассеты" предназначена для облицовки фасадов и утепления с наружной стороны вновь строящихся и реконструируемых зданий и сооружений различного назначения всех уровней ответственности, степеней огнестойкости и классов функциональной и конструктивной пожарной опасности в местностях, относящихся к различным ветровым районам с различными геологическими и геофизическими условиями - в соответствии с подтвержденной расчетами и испытаниями несущей способностью конструкций, а также к районам с различными температурно-климатическими условиями - в соответствии с результатами теплотехнических расчетов и к районам с неагрессивной, слабоагрессивной и среднеагрессивной внешней средой.

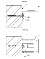
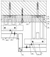
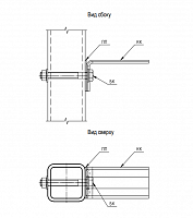
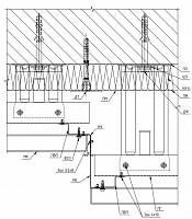
НФС "АЛЬФА-Металлокассеты" представляет из себя комплект изделий, состоящий из несущих кронштейнов, вертикальных и горизонтальных направляющих профилей из коррозионностойкой или оцинкованной стали с дополнительным двухсторонним антикоррозионным полимерным покрытием, теплоизоляционных изделий, защитной мембраны (при необходимости), облицовки (металлокассеты, профилированный лист, металлосайдинг), деталей примыкания системы к строительному основанию и крепежных изделий.

3398233bd6717a1a78332f459628186b
3398233bd6717a1a78332f459628186b
fd3243022636b06ee505ad9b883f66a3
fd3243022636b06ee505ad9b883f66a3
dd52046a2e4a13cbd3d69966cda72502
dd52046a2e4a13cbd3d69966cda72502
6abbaf68f9e7e7334646e2b7041b5494
6abbaf68f9e7e7334646e2b7041b5494
f5797249e7cd1fe6a90f8d61fdcead21
f5797249e7cd1fe6a90f8d61fdcead21
Для вас предусмотрена скидка от базовых цен!
Отправить заявку

Другие фасадные системы под
Металлокассеты

Заказать расчёт сметы. БЕСПЛАТНО!