Фасадная система Альт-фасад 04 под Металлокассеты

  • Описание системы
  • Документация к системе
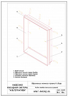
  • Фотографии + чертежи + узлы
  • Комплектующие
Простота монтажа, привлекательный внешний вид, широкий выбор цветовых решений - вот неполный список основных преимуществ металлических кассет, которые сделали их такими популярными как в частном, так и промышленном строительстве.

При монтаже данного материала мы предлагаем использовать системы крепления Альт-фасад 04, которые включают в себя вертикальную, горизонтально-вертикальную и систему крепления в межэтажные перекрытия. Это продуманные, всесторонне проработанные, универсальные навесные системы, позволяющие с минимальными затратами выполнить облицовку фасада.

Характеристики системы

  • Класс пожарной опасности системы К0
  • Группа горючести облицовочного материала Г1
  • Срок службы более 50 лет

16889c9629f60004605ea206ddf1a359
16889c9629f60004605ea206ddf1a359
6b24fad4213a9e01e44db296e025cf10
6b24fad4213a9e01e44db296e025cf10
a340426fa0a6429789b1093fa2f41b30
a340426fa0a6429789b1093fa2f41b30
95d36de0f77f4840736f6e356c7217b3
95d36de0f77f4840736f6e356c7217b3
de18aa967beeeb02be0dab541f2527c7
de18aa967beeeb02be0dab541f2527c7
77430572552f288eb356497cb025a0a5
77430572552f288eb356497cb025a0a5
02d8bffe81bbc4f1088b5d3370dbcbc6
02d8bffe81bbc4f1088b5d3370dbcbc6
995fc21b45f925bcd191a0e24e925b04
995fc21b45f925bcd191a0e24e925b04
27c9f476ff52782a7b6dfdad3a9186b5
27c9f476ff52782a7b6dfdad3a9186b5
4122e2a6678943d3f139b88f7681dc26
4122e2a6678943d3f139b88f7681dc26
b56eeab87e8ba6fdf32672aec8e8c705
b56eeab87e8ba6fdf32672aec8e8c705
40a0da333c150a5031eca12336734f78
40a0da333c150a5031eca12336734f78
59887e123fbb94c6642c9032c614de37
59887e123fbb94c6642c9032c614de37
9e58c010fc52753af7afafc83526f5be
9e58c010fc52753af7afafc83526f5be
d4e95f81794ef5ca9652121c7effa397
d4e95f81794ef5ca9652121c7effa397
c48f6af301dfdc8093cbc06fd314e87b
c48f6af301dfdc8093cbc06fd314e87b
d58181ef3840cade385f9067c4b1cf58
d58181ef3840cade385f9067c4b1cf58
f33c2281850a1160ad027444ee074e3c
f33c2281850a1160ad027444ee074e3c
e1a9070fd13bac580aa877af91a6a8ab
e1a9070fd13bac580aa877af91a6a8ab
Для вас предусмотрена скидка от базовых цен!
Отправить заявку

Другие фасадные системы под
Металлокассеты

Заказать расчёт сметы. БЕСПЛАТНО!