Фасадная система Doksal DVF-31 Light под Фасадный керамогранит

  • Описание системы
  • Документация к системе
  • Фотографии + чертежи + узлы
  • Комплектующие
Вентилируемые фасады системы DOKSAL предназначены для облицовки фасадов зданий и других строительных сооружений декоративным материалом и утепления стен с наружной стороны в соответствии с требованиями действующих норм по тепловой защите зданий.

Конструкции применяются для устройства навесных фасадных систем вновь строящихся и реконструируемых зданий и сооружений различных уровней ответственности, всех степеней огнестойкости и классов функциональной и конструктивной пожарной опасности по СНиП 21-01-97.

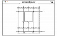
Серия DVF-31 предназначена для крепления керамогранита со скрытым креплением.

Вариант Light. Экономичный вариант для зданий с большими ветровыми нагрузками. Кронштейны крепятся в несущие стены зданий.

2c6f050bef9041415745a106907b344b
2c6f050bef9041415745a106907b344b
8cb7e0cb34dbab1e224c678de8043822
8cb7e0cb34dbab1e224c678de8043822
b7f9e3b88b62735c93ce36aa60c8741b
b7f9e3b88b62735c93ce36aa60c8741b
c0b82d54a990ed474544872a89d68637
c0b82d54a990ed474544872a89d68637
78530382815992b519a3a6f013d07051
78530382815992b519a3a6f013d07051
eedb00797ebac978523b1bdcfb967679
eedb00797ebac978523b1bdcfb967679
5cd9ef96a1ce6cff49ebffbd61eab3e2
5cd9ef96a1ce6cff49ebffbd61eab3e2
Закладные детали
Фото Наименование Артикул Единица измерения Цена (руб.)
Соединитель Н 100 шт. 101,00
Соединитель Н 80 шт. 84,00
Соединитель Н шт. 53,00
Закладная НТ 80 шт. 54,00
Закладная НТ шт. 36,00

Подняться к карте разделов

Кляммера для видимого крепления керамогранитной плитки
Фото Наименование Артикул Единица измерения Цена (руб.)
Кляммер одинарный 10-13мм AISI 430 1,2мм шт. 10,00
Кляммер одинарный 10-13мм AISI 430 1,0мм шт. 9,00
Кляммер одинарный 10-13мм AISI 201 1,2мм шт. 11,00
Кляммер универсальный 8-10мм AISI 430 1,2мм шт. 25,00
Кляммер универсальный 8-10мм AISI 430 1,0мм шт. 22,00
Кляммер универсальный 8-10мм AISI 201 1,2мм шт. 27,00
Кляммер угловой 8-10мм AISI 430 1,0мм шт. 13,00
Кляммер угловой 8-10мм AISI 201 1,2мм шт. 19,00
Кляммер угловой 10-13мм AISI 430 1,2мм шт. 15,00
Кляммер угловой 10-13мм AISI 430 1,0мм шт. 13,00
Кляммер угловой 10-13мм AISI 201 1,2мм шт. 19,00
Кляммер стартовый 8-10мм AISI 430 1,0мм шт. 14,00
Кляммер стартовый 8-10мм AISI 201 1,2мм шт. 18,00
Кляммер стартовый 10-13мм AISI 430 1,2мм шт. 16,00
Кляммер стартовый 10-13мм AISI 430 1,0мм шт. 14,00
Кляммер стартовый 10-13мм AISI 201 1,2мм шт. 18,00
Кляммер рядовой 8-10мм AISI 430 1,0мм шт. 21,00
Кляммер рядовой 8-10мм AISI 201 1,2мм шт. 29,00
Кляммер рядовой 10-13мм AISI 430 1,2мм шт. 24,00
Кляммер рядовой 10-13мм AISI 430 1,0мм шт. 21,00
Кляммер рядовой 10-13мм AISI 201 1,2мм шт. 29,00

Подняться к карте разделов

Комплектующие для крепления металлокассет
Фото Наименование Артикул Единица измерения Цена (руб.)
Уголок соединительный шт. 9,00
Компенсатор шт. 15,00
Пластина соединительная шт. 4,00
Икля правая шт. 10,00
Икля левая шт. 10,00
Зацеп шт. 8,00
Салазка Т2 под икли шт. 25,00
Салазка со втулкой и винтом шт. 60,00
Салазка под зацеп с винтом шт. 34,00
Салазка под зацеп с винтом шт. 54,00

Подняться к карте разделов

Комплектующие для крепления терракоты и скрытого крепления керамогранита

Подняться к карте разделов

Крепёж

Подняться к карте разделов

Кронштейны
Фото Наименование Артикул Единица измерения Цена (руб.)
Кронштейн MX 60x275 шт. 269,00
Кронштейн TM шт. 34,00
Кронштейн TL шт. 58,00
Кронштейн HM 220 шт. 243,00
Кронштейн HM 150 шт. 220,00
Кронштейн HL 220 шт. 453,00
Кронштейн HL 150 шт. 409,00
Кронштейн US 240 шт. 156,00
Кронштейн US 220 шт. 133,00
Кронштейн US 190 шт. 126,00
Кронштейн US 170 шт. 115,00
Кронштейн US 150 шт. 94,00
Кронштейн US 120 шт. 87,00
Кронштейн US 80 шт. 70,00
Кронштейн UM 240 шт. 206,00
Кронштейн UM 220 шт. 174,00
Кронштейн UM 190 шт. 165,00
Кронштейн UM 170 шт. 151,00
Кронштейн UM 150 шт. 123,00
Кронштейн UM 120 шт. 113,00
Кронштейн UM 80 шт. 90,00
Кронштейн UL 240 шт. 382,00
Кронштейн UL 220 шт. 320,00
Кронштейн UL 190 шт. 303,00
Кронштейн UL 170 шт. 278,00
Кронштейн UL 150 шт. 223,00
Кронштейн UL 120 шт. 203,00
Кронштейн UL 80 шт. 158,00
Кронштейн LX 60x275 шт. 467,00
Кронштейн S 60x240 шт. 87,00
Кронштейн S 60x220 шт. 69,00
Кронштейн S 60x190 шт. 61,00
Кронштейн S 60x170 шт. 53,00
Кронштейн S 60x150 шт. 48,00
Кронштейн S 60x120 шт. 41,00
Кронштейн S 40x150 шт. 41,00
Кронштейн S 40x120 шт. 36,00
Кронштейн S 40x100 шт. 33,00
Кронштейн S 40x80 шт. 30,00
Кронштейн S 40x80x2 шт. 25,00
Кронштейн S 40x60 шт. 26,00
Кронштейн M 60x240 шт. 117,00
Кронштейн M 60x220 шт. 92,00
Кронштейн M 60x190 шт. 81,00
Кронштейн M 60x170 шт. 69,00
Кронштейн M 60x150 шт. 62,00
Кронштейн M 60x120 шт. 53,00
Кронштейн M 40x150 шт. 53,00
Кронштейн M 40x120 шт. 46,00
Кронштейн M 40x100 шт. 41,00
Кронштейн M 40x80 шт. 37,00
Кронштейн M 40x80x2 шт. 31,00
Кронштейн M 40x60 шт. 32,00
Кронштейн D 60x240 шт. 162,00
Кронштейн D 60x220 шт. 126,00
Кронштейн D 60x190 шт. 111,00
Кронштейн D 60x170 шт. 96,00
Кронштейн D 60x150 шт. 86,00
Кронштейн D 60x120 шт. 73,00
Кронштейн D 40x150 шт. 73,00
Кронштейн D 40x120 шт. 62,00
Кронштейн D 40x100 шт. 56,00
Кронштейн D 40x80 шт. 50,00
Кронштейн D 40x60 шт. 43,00
Кронштейн L 60x240 шт. 219,00
Кронштейн L 60x220 шт. 171,00
Кронштейн L 60x190 шт. 149,00
Кронштейн L 60x170 шт. 130,00
Кронштейн L 60x150 шт. 116,00
Кронштейн L 60x120 шт. 98,00
Кронштейн L 40x150 шт. 99,00
Кронштейн L 40x120 шт. 84,00
Кронштейн L 40x100 шт. 75,00
Кронштейн L 40x80 шт. 67,00
Кронштейн L 40x80x2 шт. 56,00
Кронштейн L 40x60 шт. 57,00

Подняться к карте разделов

Термоизоляторы
Фото Наименование Артикул Единица измерения Цена (руб.)
Термоизолятор HM шт. 19,00
Термоизолятор HL шт. 35,00
Термоизолятор M 60 шт. 9,00
Термоизолятор L 60 шт. 15,00

Подняться к карте разделов

Удлинители
Фото Наименование Артикул Единица измерения Цена (руб.)
Удлинитель SD шт. 46,00
Удлинитель SM шт. 34,00
Удлинитель SL шт. 61,00
Удлинитель UM шт. 82,00
Удлинитель UL шт. 146,00
Удлинитель M 400 шт. 138,00
Удлинитель L 400 шт. 236,00
Удлинитель M 110 шт. 41,00
Удлинитель L 110 шт. 76,00

Подняться к карте разделов

Уплотнители
Фото Наименование Артикул Единица измерения Цена (руб.)
Уплотнитель узкий 36 мм (м.п.) шт. 16,00
Уплотнитель широкий 56 мм (м.п.) шт. 21,00

Подняться к карте разделов

Профили вспомогательные и декоративные

Подняться к карте разделов

Профили направляющие
Фото Наименование Артикул Единица измерения Цена (руб.)
Т-профиль 100х80х2 п. м. 553,00
H-профиль 100х45х1,6 п. м. 337,00
H-профиль 100x85x2,2 п. м. 721,00
H-профиль 100x50x2,2 п. м. 550,00
Т-профиль 60х80х2 п. м. 488,00
H-профиль 60х45х1,6 п. м. 274,00
H-профиль 60х105х1,5 п. м.
H-профиль 60х105х2,2 п. м. 716,00
H-профиль 60х95х1,5 п. м.
H-профиль 60х95х2,2 п. м.
H-профиль 60х85х1,5 п. м. 473,00
H-профиль 60х85х2,2 п. м. 667,00
H-профиль 60х50х1,5 п. м. 355,00
H-профиль 60х50х2,2 п. м. 503,00
Т-профиль 60х35х1,3 п. м. 140,00
Y-профиль 75х70х1,8 п. м. 274,00
Т-профиль 56х44х1,2 п. м. 136,00
Т-профиль 100х54х1,8 п. м. 259,00
Y-профиль 60х60х1,8 п. м. 220,00
Т-профиль 60х60х1,8 п. м. 204,00
Т-профиль 60х80х2,2 п. м. 269,00
L-профиль 38х54х1,7 п. м. 145,00
Т-профиль 70х50х1,6 п. м. 170,00

Подняться к карте разделов

Профили соединительные для композитных панелей

Подняться к карте разделов

Для вас предусмотрена скидка от базовых цен!
Отправить заявку

Другие фасадные системы под
Фасадный керамогранит

Заказать расчёт сметы. БЕСПЛАТНО!