
Фасадная система Grosstek GT-2.2» часто применяется для облицовки жилых, коммерческих, промышленных, торгово-развлекательных и спортивных сооружений.
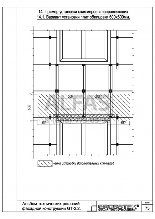
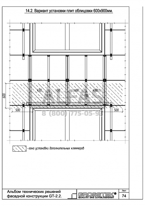
Целью фасадной системы является объединение всех элементов фасада в единое целое.Система состоит из несущих кронштейнов, монтируемых в стену при помощи дюбелей непосредственно к несущей конструкции и профилей, устанавливаемых на кронштейны, к которым с помощью кляммеров, салазок или других крепежных элементов прикрепляется облицовочный материал. Фасадная система равномерно распределяет нагрузку по всей плоскости, поэтому конструкция не имеет ограничений по высоте.
Все части фасадной системы Grosstek GT-2.2 изготавливают из алюминиевого сплава, что делает конструкцию легкой и прочной. Вследствие легкости конструкции, нагрузка на несущую стену ощутимо меньше, чем у систем из других материалов, притом, что сама система способна выдерживать большой вес облицовочного материала.
Алюминиевая фасадная система имеет большое преимущество перед системами из оцинкованной стали, так как алюминий слабо подвержен коррозии. Срок службы такой системы варьируется от 40 до 50 лет.