Фасадная система Alucom NG под Натуральный камень

  • Описание системы
  • Документация к системе
  • Фотографии + чертежи + узлы
  • Комплектующие
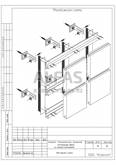
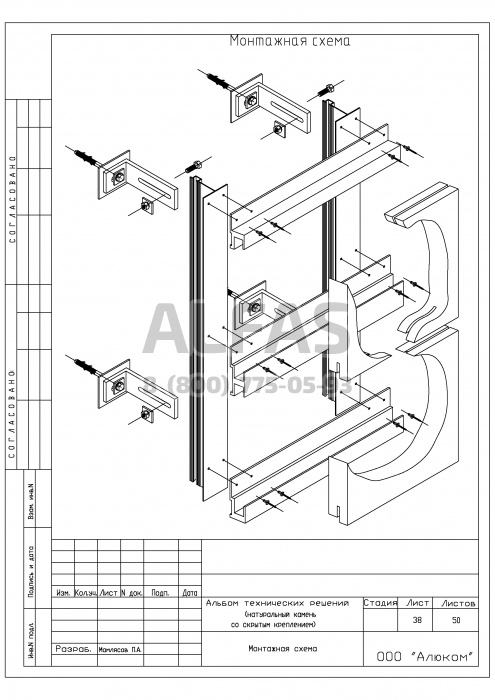
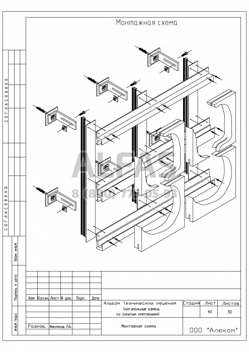
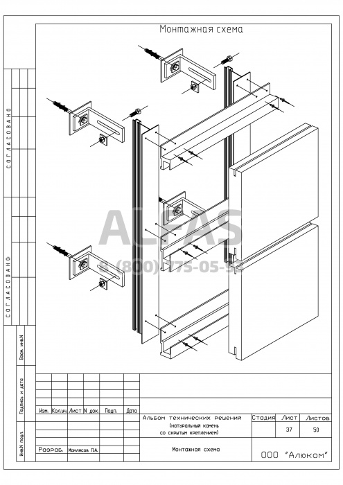
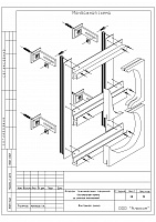
Alucom NG – алюминиевая подоблицовочная конструкция, выполненная из сплава А 6063 Т6, обеспечиваемый диапазон регулировки относа от стены от 130 мм до 270мм. В качестве облицовки используются плиты из натурального камня толщиной 30мм. Крепление осуществляется скрытым способом при помощи кляммеров (горизонтальных направляющих). В плитах натурального камня фрезеруются специальные пазы в которые входят лапки горизонтальных направляющих, надежно фиксируя плиту.

Вертикальные и горизонтальные направляющие в системы соединяются при помощи заклепок, что обеспечивает надежность соединений и высокую стойкость конструкций к динамическим нагрузкам.

Особенность системы:

  • Надежность крепления всей конструкции за счет применения болтового соединения кронштейна и направляющей.
  • Элементы крепления не выступают за плоскость облицовывающей плиты натурального камня.
  • Высокая надежность системы. Плиты натурального камня фиксируются по всей длине пазов в верхнем и нижнем торцах плит.
  • Быстрота сборки, обусловленная оригинальной конструкцией системы.
  • Эстетическая привлекательность, шов между плитами натурального камня - 3 мм.

b7dc323cfc210b9731fa3e455ef09095
b7dc323cfc210b9731fa3e455ef09095
88334ee55ff7e5b60ef9e998eebbb665
88334ee55ff7e5b60ef9e998eebbb665
39382e0f919b48118bced9dc16c7ba31
39382e0f919b48118bced9dc16c7ba31
791b77a9a089d396fe42ab9920da1009
791b77a9a089d396fe42ab9920da1009
0cc84c82e8e932e7118e959e1fff3377
0cc84c82e8e932e7118e959e1fff3377
eeff93026c178362d6d4c15a639391e5
eeff93026c178362d6d4c15a639391e5
c85cc0f16337c32708beb1fffd47ac79
c85cc0f16337c32708beb1fffd47ac79
7587dfb799b61c57faaa21af35b2221c
7587dfb799b61c57faaa21af35b2221c
Для вас предусмотрена скидка от базовых цен!
Отправить заявку

Другие фасадные системы под
Натуральный камень

Заказать расчёт сметы. БЕСПЛАТНО!