Doksal

  • Описание
  • Фасадные системы
  • Цены
Doksal

Фасадная система DOKSAL

Фасадная система DOKSAL – вентилируемая алюминиевая фасадная система, где профили располагаются вертикально. Сплав комплектующих обладает повышенной прочностью и легкость и устойчивостью к коррозии.

Эти характеристики достигнуты наличием алюминия и магния в составе сплава. Дополнительные характеристики придает процесс закаливания.

Преимущества системы

  • Система защищает строение от внешнего воздействия неблагоприятных факторов, что способствует более долгому сроку службы конструкции в целом.
  • Специальный сплав сочетает в себе прочность, легкость, износостойкость и устойчивость к различным климатическим условиям, что позволяет использовать фасадную систему DOKSAL на территории России.
  • Производители разработали четыре варианта системы для различного уровня нагрузки:
    - Econom – экономный вариант с креплением для несущих стен, - Light – вариант с креплением в несущие стены при больших ветровых нагрузках,
    - Hight – система с креплениями в стены перекрытий каркасных домов,
    - Ultra – система с креплением в несущие стены и перекрытия при наличии больших ветровых нагрузок.
  • Разработка системы велась с учетом строительных требований и стандартов, действующих на территории страны.

Цена системы складывается из стоимости профилей и комплектующих частей. Если вы хотите купить фасадную систему, стоит обратить внимание, что DOKSAL рассчитана для использования с разными видами облицовки здания.

Она применима при облицовке керамогранитом, натуральным камнем, керамикой, металлокомпозитными кассетами, плитами из фиброцемента и HPL-панелями. Такая высокая совместимость с облицовочным материалом делает фасадную систему DOKSAL востребованной и широкой в применении.

Фасадная система
Материал системы
Крепление к стене
Торговая марка
Цена за 1 м2
Фасадная система: Doksal DP-38
Материал:
Крепление к стене:
Торговая марка:
Цена за 1 м2: Цена по запросу
Фасадная система: Doksal DVF-31 Econom
Материал:
Крепление к стене:
Торговая марка:
Цена за 1 м2: Цена по запросу
Фасадная система: Doksal DVF-31 Light
Материал:
Крепление к стене:
Торговая марка:
Цена за 1 м2: Цена по запросу
Фасадная система: Doksal DVF-31 Hight
Материал:
Крепление к стене:
Торговая марка:
Цена за 1 м2: Цена по запросу
Фасадная система: Doksal DVF-31 Ultra
Материал:
Крепление к стене:
Торговая марка:
Цена за 1 м2: Цена по запросу
Фасадная система: Doksal DVF-31 Econom
Материал:
Крепление к стене:
Торговая марка:
Цена за 1 м2: Цена по запросу
Фасадная система: Doksal DVF-31 Light
Материал:
Крепление к стене:
Торговая марка:
Цена за 1 м2: Цена по запросу
Фасадная система: Doksal DVF-31 Hight
Материал:
Крепление к стене:
Торговая марка:
Цена за 1 м2: Цена по запросу
Фасадная система: Doksal DVF-31 Ultra
Материал:
Крепление к стене:
Торговая марка:
Цена за 1 м2: Цена по запросу
Фасадная система: Doksal DVF-31(2) Ultra
Материал:
Крепление к стене:
Торговая марка:
Цена за 1 м2: Цена по запросу
Фасадная система: Doksal DVF-31(2) Light
Материал:
Крепление к стене:
Торговая марка:
Цена за 1 м2: Цена по запросу
Фасадная система: Doksal DVF-31(2) Econom
Материал:
Крепление к стене:
Торговая марка:
Цена за 1 м2: Цена по запросу
Фасадная система: Doksal DVF-31(2) Hight
Материал:
Крепление к стене:
Торговая марка:
Цена за 1 м2: Цена по запросу
Фасадная система: Doksal DVF-31(2) Econom
Материал:
Крепление к стене:
Торговая марка:
Цена за 1 м2: Цена по запросу
Фасадная система: Doksal DVF-31(2) Light
Материал:
Крепление к стене:
Торговая марка:
Цена за 1 м2: Цена по запросу
Фасадная система: Doksal DVF-31(2) Ultra
Материал:
Крепление к стене:
Торговая марка:
Цена за 1 м2: Цена по запросу
Фасадная система: Doksal DVF-31(2) Hight
Материал:
Крепление к стене:
Торговая марка:
Цена за 1 м2: Цена по запросу
Фасадная система: Doksal DVF-31(2) Econom
Материал:
Крепление к стене:
Торговая марка:
Цена за 1 м2: Цена по запросу
Фасадная система: Doksal DVF-31(2) Light
Материал:
Крепление к стене:
Торговая марка:
Цена за 1 м2: Цена по запросу
Фасадная система: Doksal DVF-31(2) Ultra
Материал:
Крепление к стене:
Торговая марка:
Цена за 1 м2: Цена по запросу
Фасадная система: Doksal DVF-31(2) Hight
Материал:
Крепление к стене:
Торговая марка:
Цена за 1 м2: Цена по запросу
Фасадная система: Doksal DVF-31(2) Ultra
Материал:
Крепление к стене:
Торговая марка:
Цена за 1 м2: Цена по запросу
Фасадная система: Doksal DVF-31(2) Econom
Материал:
Крепление к стене:
Торговая марка:
Цена за 1 м2: Цена по запросу
Фасадная система: Doksal DVF-31(2) Light
Материал:
Крепление к стене:
Торговая марка:
Цена за 1 м2: Цена по запросу
Фасадная система: Doksal DVF-31(2) Hight
Материал:
Крепление к стене:
Торговая марка:
Цена за 1 м2: Цена по запросу
Фасадная система: Doksal DVF-31 Ultra
Материал:
Крепление к стене:
Торговая марка:
Цена за 1 м2: Цена по запросу
Фасадная система: Doksal DVF-31 Hight
Материал:
Крепление к стене:
Торговая марка:
Цена за 1 м2: Цена по запросу
Фасадная система: Doksal DVF-31 Light
Материал:
Крепление к стене:
Торговая марка:
Цена за 1 м2: Цена по запросу
Фасадная система: Doksal DVF-31 Econom
Материал:
Крепление к стене:
Торговая марка:
Цена за 1 м2: Цена по запросу
Фасадная система: Doksal DVF-21 Econom
Материал:
Крепление к стене:
Торговая марка:
Цена за 1 м2: Цена по запросу
Фасадная система: Doksal DVF-21 Light
Материал:
Крепление к стене:
Торговая марка:
Цена за 1 м2: Цена по запросу
Фасадная система: Doksal DVF-21 Hight
Материал:
Крепление к стене:
Торговая марка:
Цена за 1 м2: Цена по запросу
Фасадная система: Doksal DVF-21 Ultra
Материал:
Крепление к стене:
Торговая марка:
Цена за 1 м2: Цена по запросу
Фасадная система: Doksal DVF-21 Ultra
Материал:
Крепление к стене:
Торговая марка:
Цена за 1 м2: Цена по запросу
Фасадная система: Doksal DVF-21 Hight
Материал:
Крепление к стене:
Торговая марка:
Цена за 1 м2: Цена по запросу
Фасадная система: Doksal DVF-21 Light
Материал:
Крепление к стене:
Торговая марка:
Цена за 1 м2: Цена по запросу
Фасадная система: Doksal DVF-21 Econom
Материал:
Крепление к стене:
Торговая марка:
Цена за 1 м2: Цена по запросу
Фасадная система: Doksal DVF-11 Ultra
Материал:
Крепление к стене:
Торговая марка:
Цена за 1 м2: Цена по запросу
Фасадная система: Doksal DVF-11 Hight
Материал:
Крепление к стене:
Торговая марка:
Цена за 1 м2: Цена по запросу
Фасадная система: Doksal DVF-11 Light
Материал:
Крепление к стене:
Торговая марка:
Цена за 1 м2: Цена по запросу
Фасадная система: Doksal DVF-11 Econom
Материал:
Крепление к стене:
Торговая марка:
Цена за 1 м2: Цена по запросу
Закладные детали
Фото Наименование Артикул Единица измерения Цена (руб.)
Соединитель Н 100 шт. 101,00
Соединитель Н 80 шт. 84,00
Соединитель Н шт. 53,00
Закладная НТ 80 шт. 54,00
Закладная НТ шт. 36,00

Подняться к карте разделов

Кляммера для видимого крепления керамогранитной плитки
Фото Наименование Артикул Единица измерения Цена (руб.)
Кляммер одинарный 10-13мм AISI 430 1,2мм шт. 10,00
Кляммер одинарный 10-13мм AISI 430 1,0мм шт. 9,00
Кляммер одинарный 10-13мм AISI 201 1,2мм шт. 11,00
Кляммер универсальный 8-10мм AISI 430 1,2мм шт. 25,00
Кляммер универсальный 8-10мм AISI 430 1,0мм шт. 22,00
Кляммер универсальный 8-10мм AISI 201 1,2мм шт. 27,00
Кляммер угловой 8-10мм AISI 430 1,0мм шт. 13,00
Кляммер угловой 8-10мм AISI 201 1,2мм шт. 19,00
Кляммер угловой 10-13мм AISI 430 1,2мм шт. 15,00
Кляммер угловой 10-13мм AISI 430 1,0мм шт. 13,00
Кляммер угловой 10-13мм AISI 201 1,2мм шт. 19,00
Кляммер стартовый 8-10мм AISI 430 1,0мм шт. 14,00
Кляммер стартовый 8-10мм AISI 201 1,2мм шт. 18,00
Кляммер стартовый 10-13мм AISI 430 1,2мм шт. 16,00
Кляммер стартовый 10-13мм AISI 430 1,0мм шт. 14,00
Кляммер стартовый 10-13мм AISI 201 1,2мм шт. 18,00
Кляммер рядовой 8-10мм AISI 430 1,0мм шт. 21,00
Кляммер рядовой 8-10мм AISI 201 1,2мм шт. 29,00
Кляммер рядовой 10-13мм AISI 430 1,2мм шт. 24,00
Кляммер рядовой 10-13мм AISI 430 1,0мм шт. 21,00
Кляммер рядовой 10-13мм AISI 201 1,2мм шт. 29,00

Подняться к карте разделов

Комплектующие для крепления металлокассет
Фото Наименование Артикул Единица измерения Цена (руб.)
Уголок соединительный шт. 9,00
Компенсатор шт. 15,00
Пластина соединительная шт. 4,00
Икля правая шт. 10,00
Икля левая шт. 10,00
Зацеп шт. 8,00
Салазка Т2 под икли шт. 25,00
Салазка со втулкой и винтом шт. 60,00
Салазка под зацеп с винтом шт. 34,00
Салазка под зацеп с винтом шт. 54,00

Подняться к карте разделов

Комплектующие для крепления терракоты и скрытого крепления керамогранита

Подняться к карте разделов

Крепёж

Подняться к карте разделов

Кронштейны
Фото Наименование Артикул Единица измерения Цена (руб.)
Кронштейн MX 60x275 шт. 269,00
Кронштейн TM шт. 34,00
Кронштейн TL шт. 58,00
Кронштейн HM 220 шт. 243,00
Кронштейн HM 150 шт. 220,00
Кронштейн HL 220 шт. 453,00
Кронштейн HL 150 шт. 409,00
Кронштейн US 240 шт. 156,00
Кронштейн US 220 шт. 133,00
Кронштейн US 190 шт. 126,00
Кронштейн US 170 шт. 115,00
Кронштейн US 150 шт. 94,00
Кронштейн US 120 шт. 87,00
Кронштейн US 80 шт. 70,00
Кронштейн UM 240 шт. 206,00
Кронштейн UM 220 шт. 174,00
Кронштейн UM 190 шт. 165,00
Кронштейн UM 170 шт. 151,00
Кронштейн UM 150 шт. 123,00
Кронштейн UM 120 шт. 113,00
Кронштейн UM 80 шт. 90,00
Кронштейн UL 240 шт. 382,00
Кронштейн UL 220 шт. 320,00
Кронштейн UL 190 шт. 303,00
Кронштейн UL 170 шт. 278,00
Кронштейн UL 150 шт. 223,00
Кронштейн UL 120 шт. 203,00
Кронштейн UL 80 шт. 158,00
Кронштейн LX 60x275 шт. 467,00
Кронштейн S 60x240 шт. 87,00
Кронштейн S 60x220 шт. 69,00
Кронштейн S 60x190 шт. 61,00
Кронштейн S 60x170 шт. 53,00
Кронштейн S 60x150 шт. 48,00
Кронштейн S 60x120 шт. 41,00
Кронштейн S 40x150 шт. 41,00
Кронштейн S 40x120 шт. 36,00
Кронштейн S 40x100 шт. 33,00
Кронштейн S 40x80 шт. 30,00
Кронштейн S 40x80x2 шт. 25,00
Кронштейн S 40x60 шт. 26,00
Кронштейн M 60x240 шт. 117,00
Кронштейн M 60x220 шт. 92,00
Кронштейн M 60x190 шт. 81,00
Кронштейн M 60x170 шт. 69,00
Кронштейн M 60x150 шт. 62,00
Кронштейн M 60x120 шт. 53,00
Кронштейн M 40x150 шт. 53,00
Кронштейн M 40x120 шт. 46,00
Кронштейн M 40x100 шт. 41,00
Кронштейн M 40x80 шт. 37,00
Кронштейн M 40x80x2 шт. 31,00
Кронштейн M 40x60 шт. 32,00
Кронштейн D 60x240 шт. 162,00
Кронштейн D 60x220 шт. 126,00
Кронштейн D 60x190 шт. 111,00
Кронштейн D 60x170 шт. 96,00
Кронштейн D 60x150 шт. 86,00
Кронштейн D 60x120 шт. 73,00
Кронштейн D 40x150 шт. 73,00
Кронштейн D 40x120 шт. 62,00
Кронштейн D 40x100 шт. 56,00
Кронштейн D 40x80 шт. 50,00
Кронштейн D 40x60 шт. 43,00
Кронштейн L 60x240 шт. 219,00
Кронштейн L 60x220 шт. 171,00
Кронштейн L 60x190 шт. 149,00
Кронштейн L 60x170 шт. 130,00
Кронштейн L 60x150 шт. 116,00
Кронштейн L 60x120 шт. 98,00
Кронштейн L 40x150 шт. 99,00
Кронштейн L 40x120 шт. 84,00
Кронштейн L 40x100 шт. 75,00
Кронштейн L 40x80 шт. 67,00
Кронштейн L 40x80x2 шт. 56,00
Кронштейн L 40x60 шт. 57,00

Подняться к карте разделов

Термоизоляторы
Фото Наименование Артикул Единица измерения Цена (руб.)
Термоизолятор HM шт. 19,00
Термоизолятор HL шт. 35,00
Термоизолятор M 60 шт. 9,00
Термоизолятор L 60 шт. 15,00

Подняться к карте разделов

Удлинители
Фото Наименование Артикул Единица измерения Цена (руб.)
Удлинитель SD шт. 46,00
Удлинитель SM шт. 34,00
Удлинитель SL шт. 61,00
Удлинитель UM шт. 82,00
Удлинитель UL шт. 146,00
Удлинитель M 400 шт. 138,00
Удлинитель L 400 шт. 236,00
Удлинитель M 110 шт. 41,00
Удлинитель L 110 шт. 76,00

Подняться к карте разделов

Уплотнители
Фото Наименование Артикул Единица измерения Цена (руб.)
Уплотнитель узкий 36 мм (м.п.) шт. 16,00
Уплотнитель широкий 56 мм (м.п.) шт. 21,00

Подняться к карте разделов

Профили вспомогательные и декоративные

Подняться к карте разделов

Профили направляющие
Фото Наименование Артикул Единица измерения Цена (руб.)
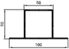
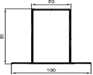
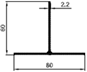
Т-профиль 100х80х2 п. м. 553,00
H-профиль 100х45х1,6 п. м. 337,00
H-профиль 100x85x2,2 п. м. 721,00
H-профиль 100x50x2,2 п. м. 550,00
Т-профиль 60х80х2 п. м. 488,00
H-профиль 60х45х1,6 п. м. 274,00
H-профиль 60х105х1,5 п. м.
H-профиль 60х105х2,2 п. м. 716,00
H-профиль 60х95х1,5 п. м.
H-профиль 60х95х2,2 п. м.
H-профиль 60х85х1,5 п. м. 473,00
H-профиль 60х85х2,2 п. м. 667,00
H-профиль 60х50х1,5 п. м. 355,00
H-профиль 60х50х2,2 п. м. 503,00
Т-профиль 60х35х1,3 п. м. 140,00
Y-профиль 75х70х1,8 п. м. 274,00
Т-профиль 56х44х1,2 п. м. 136,00
Т-профиль 100х54х1,8 п. м. 259,00
Y-профиль 60х60х1,8 п. м. 220,00
Т-профиль 60х60х1,8 п. м. 204,00
Т-профиль 60х80х2,2 п. м. 269,00
L-профиль 38х54х1,7 п. м. 145,00
Т-профиль 70х50х1,6 п. м. 170,00

Подняться к карте разделов

Профили соединительные для композитных панелей

Подняться к карте разделов

Для вас предусмотрена скидка от базовых цен!
Отправить заявку
Заказать расчёт сметы. БЕСПЛАТНО!